Consultorio odontologico AC

Consultorio odontologico AC

Caracas - VE | 2025
Caracas - VE | 2025
Imagen 3

Vista General

Vista General

Recepción
Recepción
Sala de espera
Sala de espera
Consultorio principal
Consultorio principal
Consultorio secundario
Consultorio secundario
Servicio
Servicio
Kitchenette
Kitchenette
Area de esterelización
Area de esterelización
Circulaciones internas
Circulaciones internas
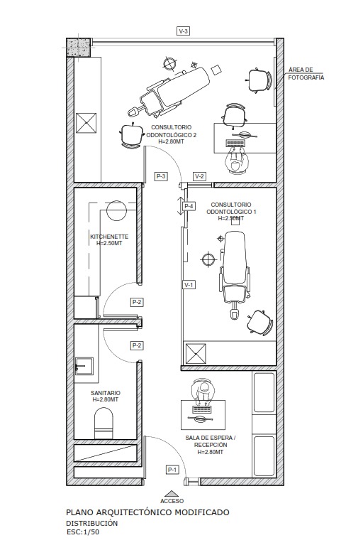
Metraje total: 36m2
- Metraje total: 36m2
Metraje consultorio principal: 11.40m2
- Metraje consultorio principal: 11.40m2
Metraje consultorio secundario: 6.85m2
- Metraje consultorio secundario: 6.85m2
Metraje recepción/espera: 5.97m2
- Metraje recepción/espera: 5.97m2
Kitchenette: 3.40m2
- Kitchenette: 3.40m2

Consultorio odontologico que potencia la espacialidad, el bienestar y la funcionalidad en cada detalle

Consultorio odontologico que potencia la espacialidad, el bienestar y la funcionalidad en cada detalle

El diseño del consultorio odontológico AC nace con la intención de crear un espacio donde la calma, la confianza y la estética trabajen juntas para transformar la experiencia del paciente. La propuesta combina un minimalismo cálido, apoyado en una paleta de tonos neutros, con acentos sutiles en verde oliva y rosado, inspirados en la identidad visual de la marca, se optimizó la distribución espacial, asegurando circulaciones fluidas y zonas de trabajo altamente funcionales para el equipo odontológico.
El diseño del consultorio odontológico AC nace con la intención de crear un espacio donde la calma, la confianza y la estética trabajen juntas para transformar la experiencia del paciente. La propuesta combina un minimalismo cálido, apoyado en una paleta de tonos neutros, con acentos sutiles en verde oliva y rosado, inspirados en la identidad visual de la marca, se optimizó la distribución espacial, asegurando circulaciones fluidas y zonas de trabajo altamente funcionales para el equipo odontológico.
Este plano define la distribución general del consultorio odontológico, organizando cada área de acuerdo con su función y la experiencia de uso deseada, cada recinto se representa con sus dimensiones, la posición del mobiliario clínico y administrativo, y la relación entre áreas públicas y privadas.
Este plano define la distribución general del consultorio odontológico, organizando cada área de acuerdo con su función y la experiencia de uso deseada, cada recinto se representa con sus dimensiones, la posición del mobiliario clínico y administrativo, y la relación entre áreas públicas y privadas.
Este plano es esencial para la ejecución, ya que proporciona la información técnica necesaria para que el equipo de obra construya según la precisión, orden y correcta secuencia constructiva. El diseño constructivo de las paredes no solo organiza la espacialidad del consultorio, sino que también contribuye al confort acústico, la higiene y la eficiencia operativa del espacio.
Este plano es esencial para la ejecución, ya que proporciona la información técnica necesaria para que el equipo de obra construya según la precisión, orden y correcta secuencia constructiva. El diseño constructivo de las paredes no solo organiza la espacialidad del consultorio, sino que también contribuye al confort acústico, la higiene y la eficiencia operativa del espacio.
Este plano integra la iluminación con la climatización y el diseño interior, generando una atmósfera equilibrada y funcional. La organización del techo favorece el confort lumínico y acústico, además de mantener ocultas las instalaciones, logrando un aspecto limpio, profesional.
Este plano integra la iluminación con la climatización y el diseño interior, generando una atmósfera equilibrada y funcional. La organización del techo favorece el confort lumínico y acústico, además de mantener ocultas las instalaciones, logrando un aspecto limpio, profesional.

Proyectos Recientes

Proyectos Recientes

Apto Omega
Valencia - VE | 2026
Casa AB
Valencia - VE | 2026
Kaella Spa
Valencia -VE | 2026
Casa MB
San Diego - VE | 2025
Oficinas OX Link
Valencia - VE | 2025
M-beauty store
Valencia - VE | 2025
Apartamento RL
Valencia - VE | 2025
Drift, expertos de auto servicios
Valencia - VE | 2024
Natural Tapas
Valencia - VE | 2025
Apartamento VF
San Carlos - VE | 2025
Ol'blue
Valencia -VE | 2025
Unidad de Dermatología y Traumatologia
Valencia - VE | 2025
TH- Doral Park
Valencia - VE | 2025
Salón Joseph Cherubini
Valencia - VE | 2025
Consultorio odontologico AC
Caracas - VE | 2025
Oficinas Torre Sena
Caracas - VE | 2025
Luxury Salón
Portuguesa - VE | 2025
TH - ZL
Valencia - VE | 2024
Casa UH
Valencia - VE | 2024
Oficinas parque cerro verde
Caracas - VE | 2025
Sencia by JC
Valencia - VE | 2024
Salón Piel Morena
Valencia- VE | 2023
K'paz Pilates studio
Caracas -VE | 2025
Apartamento OC
Valencia - VE | 2025
Apartamento PA
Caracas - VE | 2025
Casa YF
San Diego - VE | 2025
Pronoia Salon & Spa
Valencia, VE | 2024
Aura's bakery
Denver, USA | 2022

Contacto

Diseño, técnica y contexto. Creemos en una arquitectura honesta, funcional y humana. Nos mueve crear proyectos que se vivan, no solo que se vean bien.
Diseño, técnica y contexto. Creemos en una arquitectura honesta, funcional y humana. Nos mueve crear proyectos que se vivan, no solo que se vean bien.
¡Empecemos hoy!

Contacto General

+58 414 4153690

Dirección

Valencia, Venezuela

Trabajo

ppais.arquitectura@gmail.com