Unidad de Dermatología y Traumatologia

Unidad de Dermatología y Traumatologia

Valencia - VE | 2025
Valencia - VE | 2025
Imagen 3

Vista General

Vista General

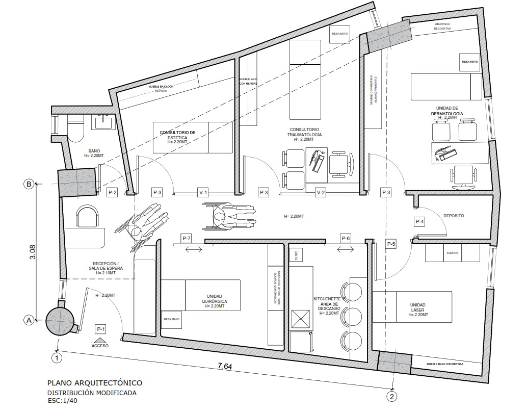
Plano general
Plano general
Plano general
Plano general
Plano general
Plano general
Plano general
Plano general
Cons. Dermatologíco
Cons. Dermatologíco
Cons. Traumatología
Cons. Traumatología
Cons. Estética
Cons. Estética
Unid. Láser
Unid. Láser
Metraje total: 75m2
- Metraje total: 75m2
Metraje Cons. Dermatologíco: 11.11m2
- Metraje Cons. Dermatologíco: 11.11m2
Metraje Cons. Estética: 6.30m2
- Metraje Cons. Estética: 6.30m2
Metraje Cons. Traumatologíco: 9.06m2
- Metraje Cons. Traumatologíco: 9.06m2
Metraje Unid. Quirurgíca: 6.68m2
- Metraje Unid. Quirurgíca: 6.68m2

Diseño de Unidad Médica de Traumatología y Dermatología | Clínica IEQ

Diseño de Unidad Médica de Traumatología y Dermatología | Clínica IEQ

Este proyecto integra consultorios de traumatología y dermatología dentro de la Clínica IEQ, conformado por cuatro espacios de consulta y una unidad quirúrgica. Se diseñó bajo una paleta de colores neutra, con mobiliario hecho a la medida, iluminación cálida y una distribución funcional que responde a las necesidades de cada procedimiento médico, priorizando el confort, la eficiencia y la experiencia del paciente.
Este proyecto integra consultorios de traumatología y dermatología dentro de la Clínica IEQ, conformado por cuatro espacios de consulta y una unidad quirúrgica. Se diseñó bajo una paleta de colores neutra, con mobiliario hecho a la medida, iluminación cálida y una distribución funcional que responde a las necesidades de cada procedimiento médico, priorizando el confort, la eficiencia y la experiencia del paciente.
En el consultorio dermatológico, la combinación del papel tapiz con el muro de piedra Ascale y la paleta de colores neutros genera una atmósfera limpia y sofisticada. Los materiales y tonalidades se integran de manera armónica, aportando calidez y equilibrio al espacio, ideal para transmitir bienestar, cuidado y precisión en los tratamientos dermatológicos.
En el consultorio dermatológico, la combinación del papel tapiz con el muro de piedra Ascale y la paleta de colores neutros genera una atmósfera limpia y sofisticada. Los materiales y tonalidades se integran de manera armónica, aportando calidez y equilibrio al espacio, ideal para transmitir bienestar, cuidado y precisión en los tratamientos dermatológicos.
El consultorio de traumatología se caracteriza por el azul del revestimiento en el muro posterior, acentuado con papel tapiz que aporta profundidad y serenidad al espacio. Esta elección cromática transmite confianza y profesionalismo, creando un ambiente equilibrado que acompaña la atención médica y favorece una experiencia visual ordenada y tranquila para el paciente.
El consultorio de traumatología se caracteriza por el azul del revestimiento en el muro posterior, acentuado con papel tapiz que aporta profundidad y serenidad al espacio. Esta elección cromática transmite confianza y profesionalismo, creando un ambiente equilibrado que acompaña la atención médica y favorece una experiencia visual ordenada y tranquila para el paciente.
La recepción se concibe como un espacio de conexión hacia el pasillo que distribuye a los demás consultorios y a la sala de cirugía menor. La iluminación cálida guía de forma natural el recorrido, mientras que los retratos fotográficos exhiben la belleza de la piel natural y cuidada, reforzando el concepto del proyecto y brindando una experiencia acogedora desde el primer contacto.
La recepción se concibe como un espacio de conexión hacia el pasillo que distribuye a los demás consultorios y a la sala de cirugía menor. La iluminación cálida guía de forma natural el recorrido, mientras que los retratos fotográficos exhiben la belleza de la piel natural y cuidada, reforzando el concepto del proyecto y brindando una experiencia acogedora desde el primer contacto.

Proyectos Recientes

Proyectos Recientes

Apto Omega
Valencia - VE | 2026
Casa AB
Valencia - VE | 2026
Kaella Spa
Valencia -VE | 2026
Casa MB
San Diego - VE | 2025
Oficinas OX Link
Valencia - VE | 2025
M-beauty store
Valencia - VE | 2025
Apartamento RL
Valencia - VE | 2025
Drift, expertos de auto servicios
Valencia - VE | 2024
Natural Tapas
Valencia - VE | 2025
Apartamento VF
San Carlos - VE | 2025
Ol'blue
Valencia -VE | 2025
Unidad de Dermatología y Traumatologia
Valencia - VE | 2025
TH- Doral Park
Valencia - VE | 2025
Salón Joseph Cherubini
Valencia - VE | 2025
Consultorio odontologico AC
Caracas - VE | 2025
Oficinas Torre Sena
Caracas - VE | 2025
Luxury Salón
Portuguesa - VE | 2025
TH - ZL
Valencia - VE | 2024
Casa UH
Valencia - VE | 2024
Oficinas parque cerro verde
Caracas - VE | 2025
Sencia by JC
Valencia - VE | 2024
Salón Piel Morena
Valencia- VE | 2023
K'paz Pilates studio
Caracas -VE | 2025
Apartamento OC
Valencia - VE | 2025
Apartamento PA
Caracas - VE | 2025
Casa YF
San Diego - VE | 2025
Pronoia Salon & Spa
Valencia, VE | 2024
Aura's bakery
Denver, USA | 2022

Contacto

Diseño, técnica y contexto. Creemos en una arquitectura honesta, funcional y humana. Nos mueve crear proyectos que se vivan, no solo que se vean bien.
Diseño, técnica y contexto. Creemos en una arquitectura honesta, funcional y humana. Nos mueve crear proyectos que se vivan, no solo que se vean bien.
¡Empecemos hoy!

Contacto General

+58 414 4153690

Dirección

Valencia, Venezuela

Trabajo

ppais.arquitectura@gmail.com