Oficinas parque cerro verde

Oficinas parque cerro verde

Caracas - VE | 2025
Caracas - VE | 2025
Imagen 3

Vista General

Vista General

Plano general
Plano general
Plano general
Plano general
Plano general
Plano general
Plano general
Plano general
Acceso principal
Acceso principal
Recepción
Recepción
Coworking
Coworking
Oficina Administrativa
Oficina Administrativa
Área de archivo
Área de archivo
Sala de reuniones
Sala de reuniones
Oficinas gerenciales 1 & 2
Oficinas gerenciales 1 & 2
Kitchenette
Kitchenette
Metraje total: 130m2
- Metraje total: 130m2
Metraje Recepción: 24m2
- Metraje Recepción: 24m2
Metraje Oficinas Gerenciales: 6.20m2 & 26m2
- Metraje Oficinas Gerenciales: 6.20m2 & 26m2
Metraje de Coworking: 13.52m2
- Metraje de Coworking: 13.52m2
Metraje de Sala de conferencias: 23.30m2
- Metraje de Sala de conferencias: 23.30m2

Oficinas diseñadas para productividad, confort, eficiencia corporativa

Oficinas diseñadas para productividad, confort, eficiencia corporativa

El proyecto de oficinas C.C parque cerro verde redefine el espacio coporativo con un diseño contemporáneo que integra funcionalidad, estética y productividad, sus áreas se desarrollan con líneas limpias, iluminación estratégica y materiales modernos que optimizan la experiencia laboral sin perder la tranquilidad que da la vista a la montaña
El proyecto de oficinas C.C parque cerro verde redefine el espacio coporativo con un diseño contemporáneo que integra funcionalidad, estética y productividad, sus áreas se desarrollan con líneas limpias, iluminación estratégica y materiales modernos que optimizan la experiencia laboral sin perder la tranquilidad que da la vista a la montaña
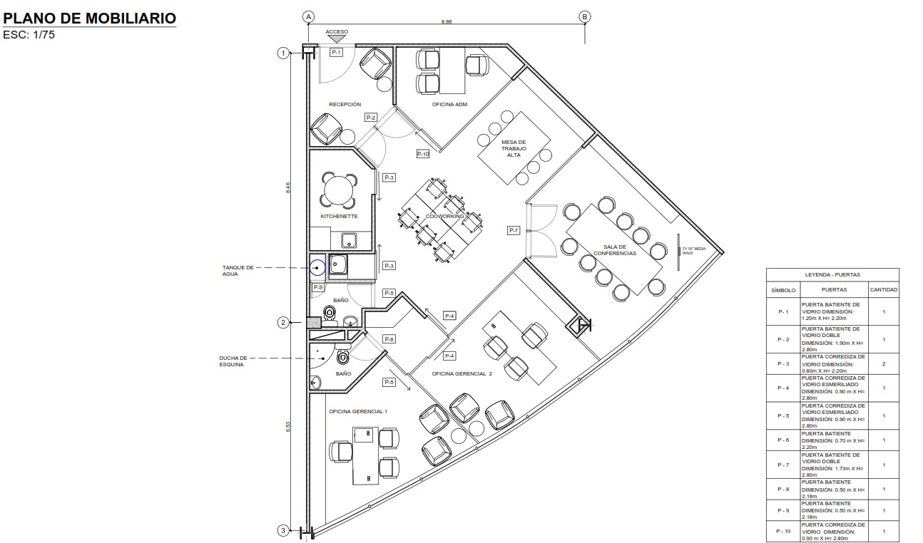
El plano de distribución establece la organización espacial completa de las oficinas. Define la ubicación de cada ambiente —recepción, coworking, oficinas administrativas y gerenciales, sala de conferencias, kitchenette y baños— así como la circulación principal que articula el proyecto.
El plano de distribución establece la organización espacial completa de las oficinas. Define la ubicación de cada ambiente —recepción, coworking, oficinas administrativas y gerenciales, sala de conferencias, kitchenette y baños— así como la circulación principal que articula el proyecto.
Este plano garantiza uniformidad visual, confort lumínico y eficiencia energética, asegurando que cada espacio disponga de la luz adecuada para su función, desde tareas administrativas hasta presentaciones y todo programado bajo el sistema Lutron.
Este plano garantiza uniformidad visual, confort lumínico y eficiencia energética, asegurando que cada espacio disponga de la luz adecuada para su función, desde tareas administrativas hasta presentaciones y todo programado bajo el sistema Lutron.
Este plano es fundamental para orientar a los equipos de obra, ya que define exactamente qué se construye, cómo se distribuyen los cerramientos y cuáles son las dimensiones finales que deben tomarse en cuenta durante la ejecución del proyecto.
Este plano es fundamental para orientar a los equipos de obra, ya que define exactamente qué se construye, cómo se distribuyen los cerramientos y cuáles son las dimensiones finales que deben tomarse en cuenta durante la ejecución del proyecto.

Proyectos Recientes

Proyectos Recientes

Apto Omega
Valencia - VE | 2026
Casa AB
Valencia - VE | 2026
Kaella Spa
Valencia -VE | 2026
Casa MB
San Diego - VE | 2025
Oficinas OX Link
Valencia - VE | 2025
M-beauty store
Valencia - VE | 2025
Apartamento RL
Valencia - VE | 2025
Drift, expertos de auto servicios
Valencia - VE | 2024
Natural Tapas
Valencia - VE | 2025
Apartamento VF
San Carlos - VE | 2025
Ol'blue
Valencia -VE | 2025
Unidad de Dermatología y Traumatologia
Valencia - VE | 2025
TH- Doral Park
Valencia - VE | 2025
Salón Joseph Cherubini
Valencia - VE | 2025
Consultorio odontologico AC
Caracas - VE | 2025
Oficinas Torre Sena
Caracas - VE | 2025
Luxury Salón
Portuguesa - VE | 2025
TH - ZL
Valencia - VE | 2024
Casa UH
Valencia - VE | 2024
Oficinas parque cerro verde
Caracas - VE | 2025
Sencia by JC
Valencia - VE | 2024
Salón Piel Morena
Valencia- VE | 2023
K'paz Pilates studio
Caracas -VE | 2025
Apartamento OC
Valencia - VE | 2025
Apartamento PA
Caracas - VE | 2025
Casa YF
San Diego - VE | 2025
Pronoia Salon & Spa
Valencia, VE | 2024
Aura's bakery
Denver, USA | 2022

Contacto

Diseño, técnica y contexto. Creemos en una arquitectura honesta, funcional y humana. Nos mueve crear proyectos que se vivan, no solo que se vean bien.
Diseño, técnica y contexto. Creemos en una arquitectura honesta, funcional y humana. Nos mueve crear proyectos que se vivan, no solo que se vean bien.
¡Empecemos hoy!

Contacto General

+58 414 4153690

Dirección

Valencia, Venezuela

Trabajo

ppais.arquitectura@gmail.com