Imagen 3

Vista General

Vista General

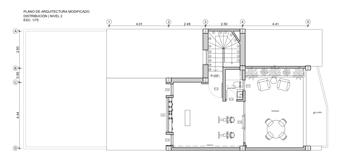
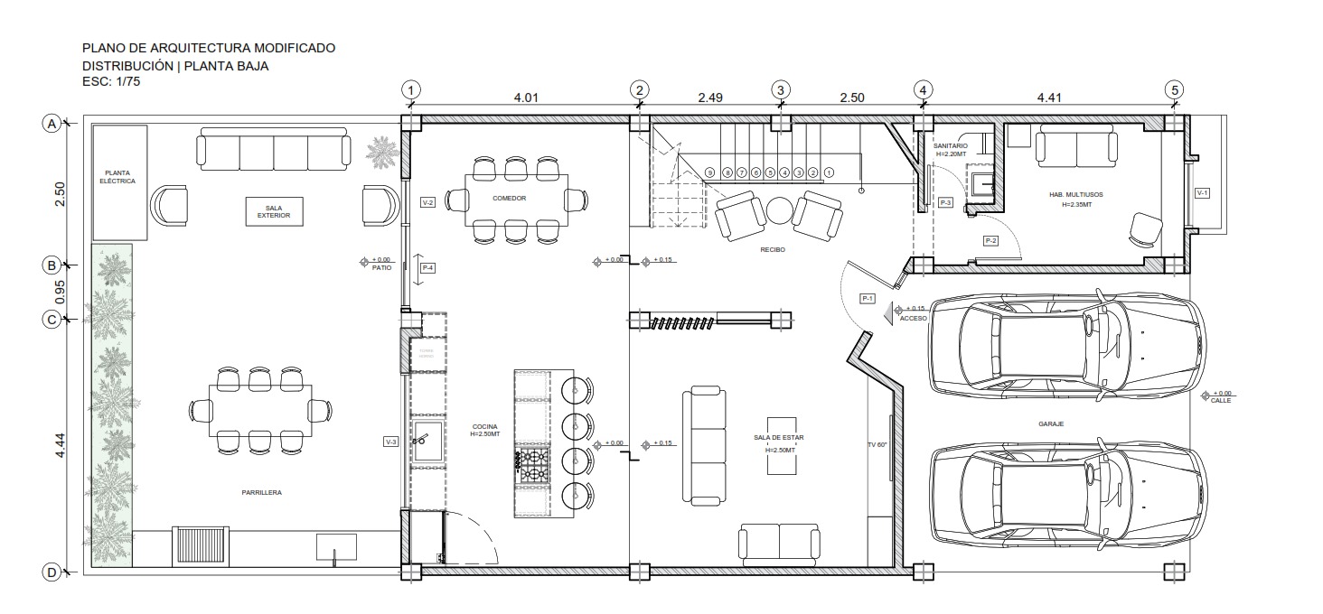
Plano general
Plano general
Plano general
Plano general
Plano general
Plano general
Plano general
Plano general
Hall
Hall
Cocina/Comedor
Cocina/Comedor
Sala
Sala
Home Office
Home Office
Patio
Patio
Hab. Principal
Hab. Principal
Vestier #1
Vestier #1
Baño principal
Baño principal
Hab. de visita #1
Hab. de visita #1
Baño compartido
Baño compartido
Hab. de visita #2
Hab. de visita #2
Lavadero
Lavadero
Metraje total: 248m2
- Metraje total: 248m2
Metraje PB: 110M2
- Metraje PB: 110M2
Metraje Nivel 1: 96m2
- Metraje Nivel 1: 96m2
Metraje Nivel 2: 42m2
- Metraje Nivel 2: 42m2
Metraje Patio: 25m2
- Metraje Patio: 25m2

Un hogar que equilibra estética, comodidad y funcionalidad, logrando ambientes que se sienten modernos, tranquilos y profundamente personales.

Un hogar que equilibra estética, comodidad y funcionalidad, logrando ambientes que se sienten modernos, tranquilos y profundamente personales.

El Proyecto Residencial Casa UH, surge como una propuesta integral de diseño interior que busca transformar cada espacio en una experiencia cálida, funcional y elegantemente contemporánea. Desde la planta baja hasta la terraza del tercer nivel, el diseño se centra en lograr armonía visual y comodidad real para la vida diaria, manteniendo una estética serena con materiales nobles, iluminación cuidada y una paleta neutra inspirada en ambientes naturales.
El Proyecto Residencial Casa UH, surge como una propuesta integral de diseño interior que busca transformar cada espacio en una experiencia cálida, funcional y elegantemente contemporánea. Desde la planta baja hasta la terraza del tercer nivel, el diseño se centra en lograr armonía visual y comodidad real para la vida diaria, manteniendo una estética serena con materiales nobles, iluminación cuidada y una paleta neutra inspirada en ambientes naturales.
La distribución interior fue concebida para ofrecer amplitud y fluidez entre las áreas sociales —sala, comedor, cocina y patio—, donde predominan líneas limpias, texturas suaves y acentos en madera que aportan calidez
La distribución interior fue concebida para ofrecer amplitud y fluidez entre las áreas sociales —sala, comedor, cocina y patio—, donde predominan líneas limpias, texturas suaves y acentos en madera que aportan calidez
En los niveles superiores, la propuesta continúa con una estética coherente que se refleja en la habitación principal, los vestieres, baños y habitaciones de visita. Cada espacio fue diseñado para generar confort, privacidad y orden, integrando mobiliario a medida y soluciones de almacenamiento que optimizan el uso del área disponible.
En los niveles superiores, la propuesta continúa con una estética coherente que se refleja en la habitación principal, los vestieres, baños y habitaciones de visita. Cada espacio fue diseñado para generar confort, privacidad y orden, integrando mobiliario a medida y soluciones de almacenamiento que optimizan el uso del área disponible.
El nivel de terraza combina funcionalidad y bienestar al incorporar un gimnasio y un espacio abierto ideal para actividades al aire libre, manteniendo la misma línea moderna y cálida presente en toda la residencia
El nivel de terraza combina funcionalidad y bienestar al incorporar un gimnasio y un espacio abierto ideal para actividades al aire libre, manteniendo la misma línea moderna y cálida presente en toda la residencia

Proyectos Recientes

Proyectos Recientes

Apto Omega
Valencia - VE | 2026
Casa AB
Valencia - VE | 2026
Kaella Spa
Valencia -VE | 2026
Casa MB
San Diego - VE | 2025
Oficinas OX Link
Valencia - VE | 2025
M-beauty store
Valencia - VE | 2025
Apartamento RL
Valencia - VE | 2025
Drift, expertos de auto servicios
Valencia - VE | 2024
Natural Tapas
Valencia - VE | 2025
Apartamento VF
San Carlos - VE | 2025
Ol'blue
Valencia -VE | 2025
Unidad de Dermatología y Traumatologia
Valencia - VE | 2025
TH- Doral Park
Valencia - VE | 2025
Salón Joseph Cherubini
Valencia - VE | 2025
Consultorio odontologico AC
Caracas - VE | 2025
Oficinas Torre Sena
Caracas - VE | 2025
Luxury Salón
Portuguesa - VE | 2025
TH - ZL
Valencia - VE | 2024
Casa UH
Valencia - VE | 2024
Oficinas parque cerro verde
Caracas - VE | 2025
Sencia by JC
Valencia - VE | 2024
Salón Piel Morena
Valencia- VE | 2023
K'paz Pilates studio
Caracas -VE | 2025
Apartamento OC
Valencia - VE | 2025
Apartamento PA
Caracas - VE | 2025
Casa YF
San Diego - VE | 2025
Pronoia Salon & Spa
Valencia, VE | 2024
Aura's bakery
Denver, USA | 2022

Contacto

Diseño, técnica y contexto. Creemos en una arquitectura honesta, funcional y humana. Nos mueve crear proyectos que se vivan, no solo que se vean bien.
Diseño, técnica y contexto. Creemos en una arquitectura honesta, funcional y humana. Nos mueve crear proyectos que se vivan, no solo que se vean bien.
¡Empecemos hoy!

Contacto General

+58 414 4153690

Dirección

Valencia, Venezuela

Trabajo

ppais.arquitectura@gmail.com