Luxury Salón

Luxury Salón

Portuguesa - VE | 2025
Portuguesa - VE | 2025
Imagen 3

Vista General

Vista General

Área de estilistas
Área de estilistas
Área de lavacabezas
Área de lavacabezas
Área de espera
Área de espera
Área de manicuristas
Área de manicuristas
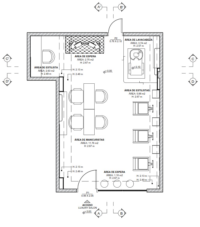
Metraje total: 48.50m2
- Metraje total: 48.50m2
Metraje de estilistas: 5.88m2
- Metraje de estilistas: 5.88m2
Metraje de manicuristas: 11.76m2
- Metraje de manicuristas: 11.76m2
Metraje de lavacabezas: 3.74m2
- Metraje de lavacabezas: 3.74m2
Metraje area de espera: 2.75m2
- Metraje area de espera: 2.75m2

Diseño interior para un Espacio de Belleza profesional

Diseño interior para un Espacio de Belleza profesional

Luxury Salón es un proyecto comercial creado para ofrecer una experiencia de belleza cálida, elegante y contemporánea. El diseño se inspira en una estética sofisticada que combina curvas suaves, materiales nobles y una paleta de tonos neutros que transmiten serenidad y exclusividad, cada detalle —desde el mobiliario hecho a medida hasta la iluminación estratégica y los acabados premium— se integra para ofrecer un ambiente exclusivo que realza la experiencia de servicio.
Luxury Salón es un proyecto comercial creado para ofrecer una experiencia de belleza cálida, elegante y contemporánea. El diseño se inspira en una estética sofisticada que combina curvas suaves, materiales nobles y una paleta de tonos neutros que transmiten serenidad y exclusividad, cada detalle —desde el mobiliario hecho a medida hasta la iluminación estratégica y los acabados premium— se integra para ofrecer un ambiente exclusivo que realza la experiencia de servicio.
Al ingresar, la distribución interior se organiza de manera precisa gracias a las áreas claramente definidas en los planos arquitectónicos: estaciones de estilistas, manicura, zona de lavado y área de espera, todas con metrajes y alturas estratégicamente diseñados para el confort y la operatividad del espacio.
Al ingresar, la distribución interior se organiza de manera precisa gracias a las áreas claramente definidas en los planos arquitectónicos: estaciones de estilistas, manicura, zona de lavado y área de espera, todas con metrajes y alturas estratégicamente diseñados para el confort y la operatividad del espacio.
Este corte ayuda a comprender la continuidad visual del salón, así como la jerarquía entre zonas de trabajo y áreas de atención al cliente.
Este corte ayuda a comprender la continuidad visual del salón, así como la jerarquía entre zonas de trabajo y áreas de atención al cliente.
En este corte se aprecia los revestimientos continuos junto a la integración del logotipo corporativo y las proporciones de los nichos y detalles curvos que dan identidad al diseño.
En este corte se aprecia los revestimientos continuos junto a la integración del logotipo corporativo y las proporciones de los nichos y detalles curvos que dan identidad al diseño.

Proyectos Recientes

Proyectos Recientes

Apto Omega
Valencia - VE | 2026
Casa AB
Valencia - VE | 2026
Kaella Spa
Valencia -VE | 2026
Casa MB
San Diego - VE | 2025
Oficinas OX Link
Valencia - VE | 2025
M-beauty store
Valencia - VE | 2025
Apartamento RL
Valencia - VE | 2025
Drift, expertos de auto servicios
Valencia - VE | 2024
Natural Tapas
Valencia - VE | 2025
Apartamento VF
San Carlos - VE | 2025
Ol'blue
Valencia -VE | 2025
Unidad de Dermatología y Traumatologia
Valencia - VE | 2025
TH- Doral Park
Valencia - VE | 2025
Salón Joseph Cherubini
Valencia - VE | 2025
Consultorio odontologico AC
Caracas - VE | 2025
Oficinas Torre Sena
Caracas - VE | 2025
Luxury Salón
Portuguesa - VE | 2025
TH - ZL
Valencia - VE | 2024
Casa UH
Valencia - VE | 2024
Oficinas parque cerro verde
Caracas - VE | 2025
Sencia by JC
Valencia - VE | 2024
Salón Piel Morena
Valencia- VE | 2023
K'paz Pilates studio
Caracas -VE | 2025
Apartamento OC
Valencia - VE | 2025
Apartamento PA
Caracas - VE | 2025
Casa YF
San Diego - VE | 2025
Pronoia Salon & Spa
Valencia, VE | 2024
Aura's bakery
Denver, USA | 2022

Contacto

Diseño, técnica y contexto. Creemos en una arquitectura honesta, funcional y humana. Nos mueve crear proyectos que se vivan, no solo que se vean bien.
Diseño, técnica y contexto. Creemos en una arquitectura honesta, funcional y humana. Nos mueve crear proyectos que se vivan, no solo que se vean bien.
¡Empecemos hoy!

Contacto General

+58 414 4153690

Dirección

Valencia, Venezuela

Trabajo

ppais.arquitectura@gmail.com