Imagen 3

Vista General

Vista General

Plano general
Plano general
Plano general
Plano general
Plano general
Plano general
Plano general
Plano general
Hall de entrada
Hall de entrada
Cocina
Cocina
Comedor
Comedor
Sala de estar
Sala de estar
Habitación principal
Habitación principal
Habitación #1
Habitación #1
Habitación #2
Habitación #2
Family Room
Family Room
Metraje total PB: 70m2
- Metraje total PB: 70m2
Metraje total PA: 82m2
- Metraje total PA: 82m2
Metraje patio: 28.30m2
- Metraje patio: 28.30m2
Metraje Cocina: 18.50m2
- Metraje Cocina: 18.50m2
Metraje family room: 18m2
- Metraje family room: 18m2

Espacios Contemporáneos Pensados para Vivir y Disfrutar

Espacios Contemporáneos Pensados para Vivir y Disfrutar

es un proyecto residencial que busca crear un hogar moderno, acogedor y luminoso, donde cada espacio aporte comodidad y calidez a la vida diaria. Desde la planta baja, el diseño se centra en integrar visual y funcionalmente las áreas sociales: hall, sala, comedor y cocina se conectan de manera fluida, potenciando la amplitud y la entrada de luz natural.
es un proyecto residencial que busca crear un hogar moderno, acogedor y luminoso, donde cada espacio aporte comodidad y calidez a la vida diaria. Desde la planta baja, el diseño se centra en integrar visual y funcionalmente las áreas sociales: hall, sala, comedor y cocina se conectan de manera fluida, potenciando la amplitud y la entrada de luz natural.
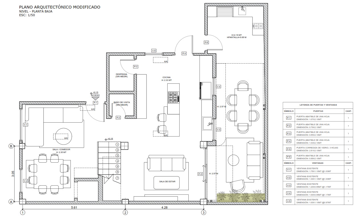
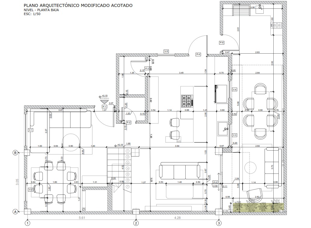
El plano de planta baja muestra la distribución completa del nivel social del townhouse. Se organiza en un esquema funcional que integra sala, comedor y cocina en un espacio continuo, favoreciendo la amplitud visual y la circulación fluida.
El plano de planta baja muestra la distribución completa del nivel social del townhouse. Se organiza en un esquema funcional que integra sala, comedor y cocina en un espacio continuo, favoreciendo la amplitud visual y la circulación fluida.
El plano de planta alta organiza las áreas privadas del proyecto, distribuyendo de manera eficiente los dormitorios, baños y espacios de estudio alrededor del núcleo de la escalera. Desde el tramo superior, un pequeño hall conecta todos los recintos, garantizando una circulación cómoda y bien diferenciada del área social ubicada en la planta baja.
El plano de planta alta organiza las áreas privadas del proyecto, distribuyendo de manera eficiente los dormitorios, baños y espacios de estudio alrededor del núcleo de la escalera. Desde el tramo superior, un pequeño hall conecta todos los recintos, garantizando una circulación cómoda y bien diferenciada del área social ubicada en la planta baja.
El plano de acabados de techos muestra en detalle la estructura superior del patio, donde se especifican los materiales, modulación y tipos de láminas utilizadas, este detalle garantiza un correcto entendimiento de cómo se ilumina y ventila el patio, así como de la protección que brinda frente a la lluvia sin perder claridad ni conexión visual hacia el exterior.
El plano de acabados de techos muestra en detalle la estructura superior del patio, donde se especifican los materiales, modulación y tipos de láminas utilizadas, este detalle garantiza un correcto entendimiento de cómo se ilumina y ventila el patio, así como de la protección que brinda frente a la lluvia sin perder claridad ni conexión visual hacia el exterior.

Proyectos Recientes

Proyectos Recientes

Apto Omega
Valencia - VE | 2026
Casa AB
Valencia - VE | 2026
Kaella Spa
Valencia -VE | 2026
Casa MB
San Diego - VE | 2025
Oficinas OX Link
Valencia - VE | 2025
M-beauty store
Valencia - VE | 2025
Apartamento RL
Valencia - VE | 2025
Drift, expertos de auto servicios
Valencia - VE | 2024
Natural Tapas
Valencia - VE | 2025
Apartamento VF
San Carlos - VE | 2025
Ol'blue
Valencia -VE | 2025
Unidad de Dermatología y Traumatologia
Valencia - VE | 2025
TH- Doral Park
Valencia - VE | 2025
Salón Joseph Cherubini
Valencia - VE | 2025
Consultorio odontologico AC
Caracas - VE | 2025
Oficinas Torre Sena
Caracas - VE | 2025
Luxury Salón
Portuguesa - VE | 2025
TH - ZL
Valencia - VE | 2024
Casa UH
Valencia - VE | 2024
Oficinas parque cerro verde
Caracas - VE | 2025
Sencia by JC
Valencia - VE | 2024
Salón Piel Morena
Valencia- VE | 2023
K'paz Pilates studio
Caracas -VE | 2025
Apartamento OC
Valencia - VE | 2025
Apartamento PA
Caracas - VE | 2025
Casa YF
San Diego - VE | 2025
Pronoia Salon & Spa
Valencia, VE | 2024
Aura's bakery
Denver, USA | 2022

Contacto

Diseño, técnica y contexto. Creemos en una arquitectura honesta, funcional y humana. Nos mueve crear proyectos que se vivan, no solo que se vean bien.
Diseño, técnica y contexto. Creemos en una arquitectura honesta, funcional y humana. Nos mueve crear proyectos que se vivan, no solo que se vean bien.
¡Empecemos hoy!

Contacto General

+58 414 4153690

Dirección

Valencia, Venezuela

Trabajo

ppais.arquitectura@gmail.com